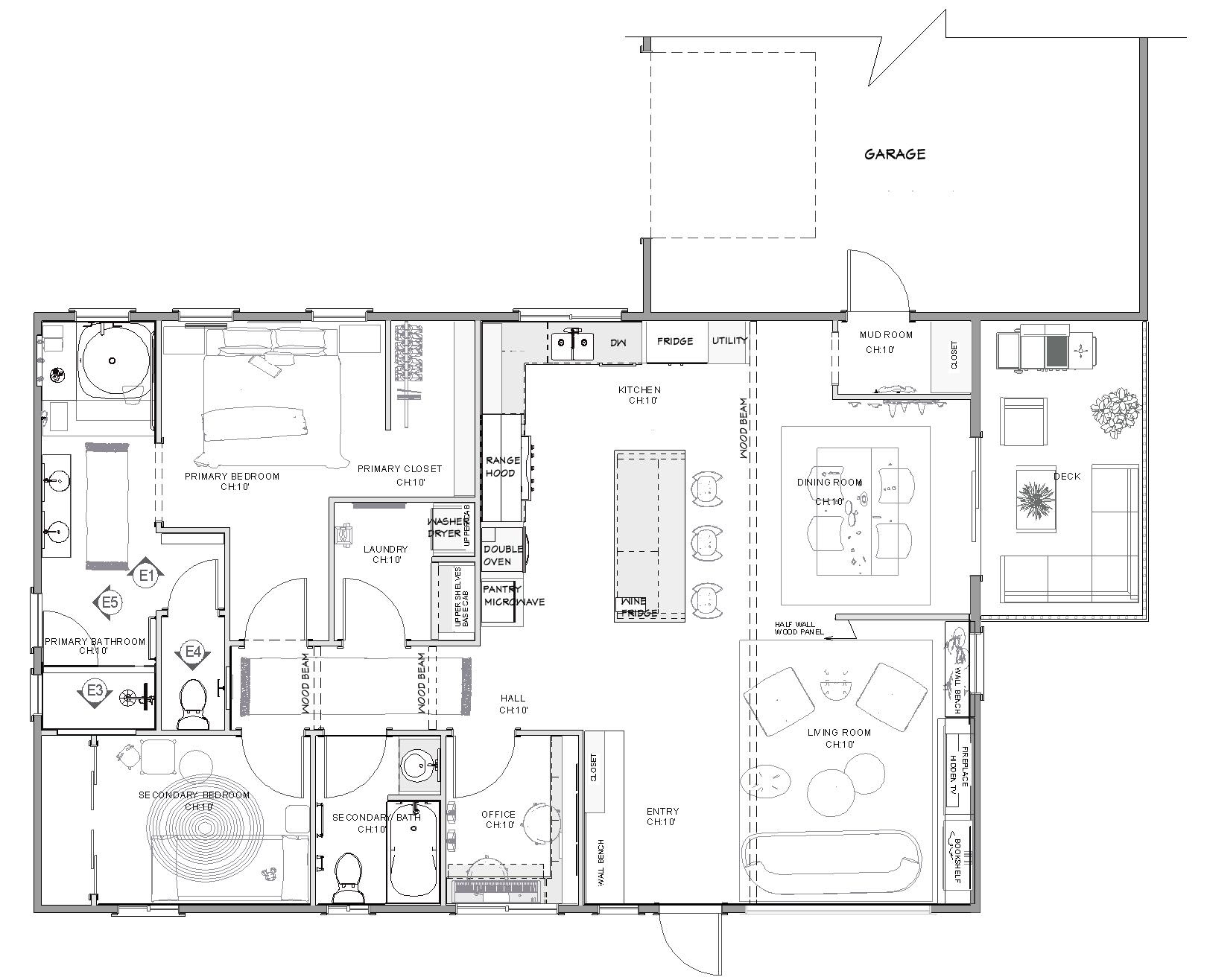
The open entry, with integrated seating and a storage closet, blends functionality with an organic, rustic–minimal aesthetic influenced by Asian design elements.
A custom bookshelf with a concealed TV and integrated fireplace upholds the minimalist aesthetic while remaining fully functional for family living.
A hidden microwave within the pantry shelving, an integrated wine rack, and a dedicated utility closet are incorporated to support family living and entertaining.
 A seamless patio connection extends the dining room outdoors, supporting family living and entertaining. A subtle partition between the living and dining spaces preserves openness while creating distinct, functional zones. 
A mudroom with north-side garage access was added to improve functional egress and overall flow.
 Custom desks with hidden instrument storage maintain a minimalist, cohesive look across all rooms.
A laundry room was added near the bedrooms, providing convenient access and dedicated storage for linens and supplies.
A seated soak tub provides a more space-conscious solution for this narrow bathroom layout. A recessed mirror with discreet storage keeps essentials organized and the aesthetic minimal.
The shower and water closet are located at the opposite end, separating functions for improved privacy and flow.
PRIMARY BATH WEST WALL ELEVATION
AS BUILT PLAN
NEW CONSTRUCTION PLAN
The ceiling wood beam allows for the removal of the as-built partial wall, while additional beams in the hallway provide cohesive architectural detail throughout the space.

You may also like

Back to Top