A contemporary–traditional blend of natural and modern elements, grounded in chocolate and neutral tones inspired by the client’s Italian dinnerware collection. 
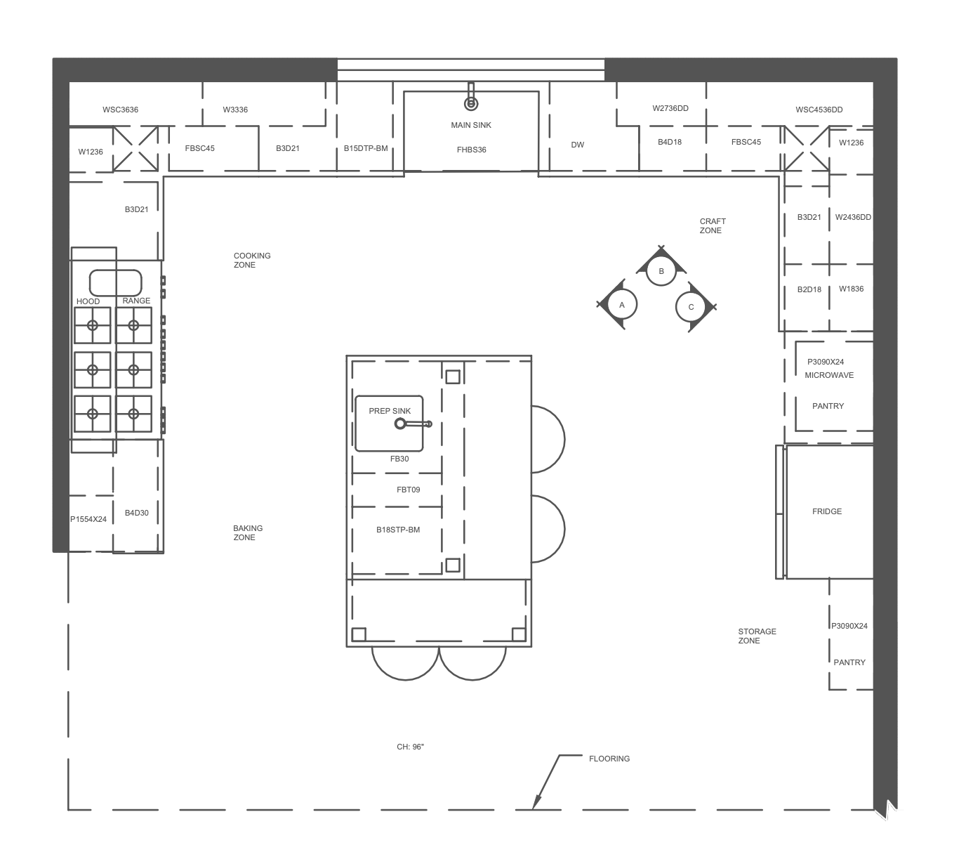
A double-oven range accommodates weekend baking and batch cooking for a busy mom of twin teenage girls. Drawer cabinetry provides organized storage for all cookware, spices, and utensils beside the range. Cabinets above conceal appliances and cookware.
With a prep sink, trash-bin pullout, and cookie-sheet storage, the island is highly functional. Its integrated charging station offers a practical place for homework and quick snacks.
Lazy Susans mirror the left and right base cabinets to create visual symmetry along the north wall. The dishwasher placement supports efficient dish transfer for a left-handed client. Open shelving on the right displays her dinnerware, while the lower drawers organize cutlery and craft items.
The pantry beside the integrated fridge conceals the microwave and keeps kids’ snacks and craft items easily accessible without disrupting the flow of the cooking zone. Additional pantry storage at the end of the wall integrates seamlessly with the dining room, maintaining a clean, cohesive look.
NEW CONSTRUCTION PLAN
Focusing on efficient working zones instead of the traditional work triangle enabled a highly organized layout for this client. Generous cabinetry meets all storage needs, while the neutral colors maintain a cozy, lightweight aesthetic.

You may also like

Back to Top